Grasse - 4P DUPLEX avec grande terrasse
Grasse
349 000 €
Surface : 71 m²
Référence 86541076
• Dans un bel Immeuble Belle Epoque avec ascenseur, un appartement 4 pièces en duplex au 4eme / 5eme dernier étage avec grande terrasse sur les hauteurs de GRASSE, Secteur Traverse du Prado - La Marbrière.
Sa surface est de 70,95 m² habitables sur 2 niveaux + 34,30 m² de terrasse environ en dernier étage. La vue est exceptionnelle sur la ville de Grasse et l'Estérel et ce, jusqu'à la mer.
Exposé plein Sud, il est très lumineux et sans aucun vis à vis.
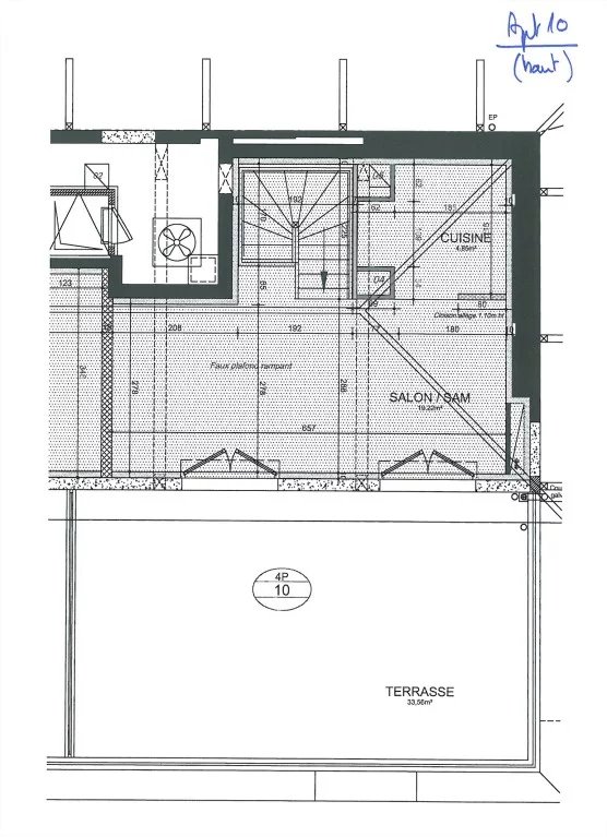
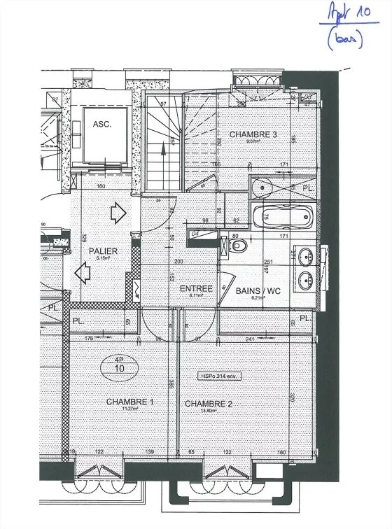
L’appartement est composé au niveau inférieur R+4 d'une belle entrée avec rangement et de 3 chambres ( 1365 m2 + 10,90 m2 + 7,80 m2 ) avec placards, une grande salle de bains avec baignoire et WC.
Un escalier mène au niveau supérieur R+5 et dernier étage avec séjour de 25 m2 avec cuisine neuve totalement équipée.
L’ensemble donnant sur la très grande terrasse avec vue panoramique.
DPE : D / A
Les charges de copropriété s'élèvent à 350 € /mensuel comprenant l'eau froide.
Le chauffage et l'eau chaude sont individuels.
Les honoraires de vente sont à la charge du vendeur .
Possibilité d’acquérir un double garage mobile en supplément.
Les informations sur les risques auxquels ce bien est exposé sont disponibles sur le site Géorisques. N'hésitez pas à nous contacter pour une visite de ce bien au fort caractère !
Résumé
- Pièces : 4 pièces
- Surface : 71 m²
- Chauffage : Individuel
- Etage : Dernier étage
- Exposition : Sud
Surfaces
- 1 Terrasse (34.3 m²)
- 1 Séjour/cuisine (25 m²)
- 3 Chambres (13.65 m², 10.9 m², 7.8 m²)
- 1 Salle de bains / toilettes
Informations légales
- Honoraires à charge vendeur
- Charges de copropriété : 350 € / Mois
- Loi Carrez : 70.95 m²
Simuler mon emprunt immobilier
Utilisez le formulaire suivant afin d'obtenir une estimation de vos mensualités et du montant total de financement pour l'achat de ce bien.
- Estimation de vos mensualités :
- Montant total emprunté :
- Coût du crédit :
