Nice - Rue de france/Baumettes - 2 pièces avec terrasse de 15m²
Nice
295 000 €
Surface : 33 m²
Référence 86504703
• Exclusivité : À Nice Rue de France, dans le secteur prisé des Baumettes,
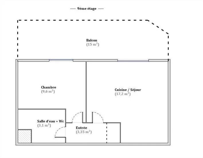
Au 9e et avant dernier étage d’une résidence sécurisée, bien entretenue, pourvue d'un ascenseur (accessible aux personnes à mobilité réduite).
Venez découvrir ce 2 pièces de 33m² baigné de soleil et sa terrasse profonde de 15m² exposée Sud-Ouest
Il se compose d'une entrée, d'un séjour avec cuisine ouverte équipée, d'une chambre de 10m².
La terrasse de 15m² ( attenante au séjour et chambre) avec aperçu mer au sud et en ouest vue dégagée sur collines
Une salle d'eau avec WC.
En terme de prestations vous profiterez d'une climatisation réversible
et en terme de sécurité, d'une porte blindée ainsi que la présence d'un gardien dans la copropriété et de la vidéo surveillance
Ce bien lumineux et pratique se situe en face de l'arrêt du tramway des commerces, des universités et de la Promenade des Anglais.
Bien idéal pour tout type d'habitation( Résidence principale, secondaire, pied à terre) ou de location (étudiante, saisonnière ou longue durée).
Une opportunité à ne pas manquer dans un quartier recherché.
Contactez Aleksandra pour une visite
Résumé
- Pièces : 2 pièces
- Surface : 33 m²
- Chauffage : Climatisation, Individuel
- Eau chaude : Chauffe-eau
- Etat : Bon état
- Etage : 9ème
- Exposition : Ouest Sud
Surfaces
- 1 Entrée (3.35 m²)
- 1 Séjour/cuisine (17.2 m²)
- 1 Chambre (9.6 m²)
- 1 Salle de douche / toilettes (3.1 m²)
- 1 Terrasse (15 m²)
Prestations
Air conditionné • Accès handicapé • Ascenseur • Fibre optique • Gardien • Interphone • Porte blindée • Vidéo surveillance
Proximités
Aéroport • Bus • Centre ville • Commerces • Mer • Piscine publique • Supermarché • Tram • Université
Informations légales
- Honoraires à charge vendeur
- Taxe foncière : 1 357 €
- Charges de copropriété : 137,50 € / Mois
- Loi Carrez : 33.25 m²
Simuler mon emprunt immobilier
Utilisez le formulaire suivant afin d'obtenir une estimation de vos mensualités et du montant total de financement pour l'achat de ce bien.
- Estimation de vos mensualités :
- Montant total emprunté :
- Coût du crédit :
